Condo & Loft Buildings From Beverly Hills to Malibu

 
7west
935 San Vicente Blvd West Hollywood, CA 90069
 

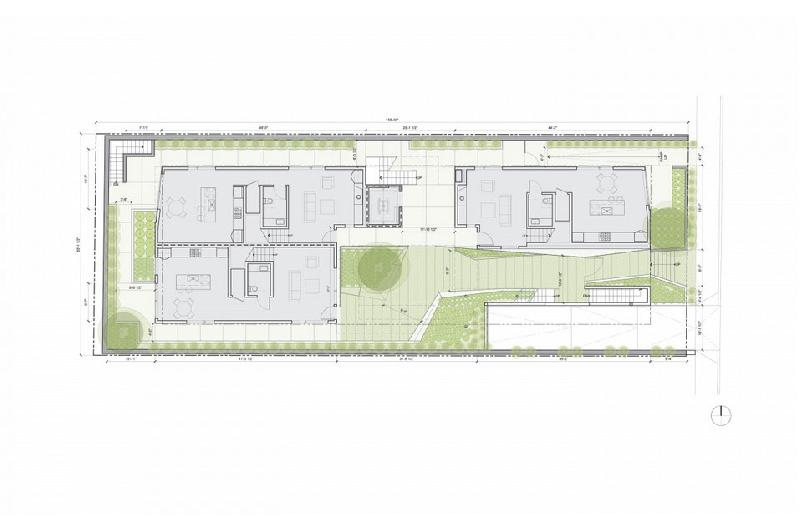
7west, built in 2018, is a 4-story, 7-unit condominium building in West Hollywood following up on LOHA’s commitment to promoting thoughtful design through the typology of courtyard housing. Located on San Vicente Blvd between Santa Monica and Sunset Blvd, this project judiciously reduces its allowable building envelope in order to maximize open space and provide a large common courtyard.

Comprising a series of perforated balconies and walkways, a sculptural main stair and all circulation is set within this common courtyard, encouraging social interaction and a sense of community between residents and visitors. Integral to the design, this centrally located amenity allows all units to have access directly from the courtyard while eliminating the need for mechanically climate-controlled corridors. The courtyard design is programmed with seating areas, a water feature, and various plantings.

In an effort to extend the street into the building, one quarter of the main elevation facing San Vicente is carved away in order to provide a direct visual and physical connection between the street and the courtyard space. Emphasized by both material and form, the double-height void provides an open, light-filled passageway, while reducing the projects’ mass at the street front and contributing porosity and visual accessibility to the project.

Composed of two-bedroom units, the project comprises two unique housing typologies. Entered from ground level, there are three walk up, two-story townhomes and four single-story flats accessed from the courtyard circulation. All units have at least three exterior exposures allowing light to enter from all sides and are all single loaded, providing cross ventilation and passive cooling.

Exterior materials are a combination of fiber cement board made of recycled content and local forest managed wood siding. Via a rain screen system application, both materials promote long-term life cycle when properly maintained and provide a rich contrast to each other as a means of reducing the project scale.

 

  • Community Details
  • Community Map
  • For Lease in The Area
  • For Sale in The Area
  • Home Owners
  

  Community Style - Architectural

  Year Built - 2016

  Number of Residences - 7

  Number of Floors - 4

  2 Bedrooms From 1,327 - 1,370 Sq Ft

 
 


Be the 1st to know when a new listing is available! Use the Contact Us form at the bottom of the page and we will notify you immediately when a property becomes available in this community.

  For off market opportunities and to be added to this community's wait list Contact Us and we will notify you when a new property is available.

View All Communities On One Page


Copyright © 2025 TopLACondos.com - All rights reserved worldwide.
(Disclaimer)